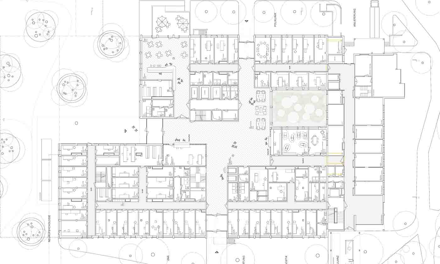
Das Schweizerische Epilepsie Zentrum plant einen Klinik-Neubau. Ziel war es ein höchst funktionales Gebäude, welches die speziellen
Anforderungen der Klinik gerecht wird, zu entwickeln. Der Wettbewerb ist ein Kooperationsprojekt von EPI und SZH Zürich.