en | de
Vita | Projekte | Wettbewerbe | Kontakt
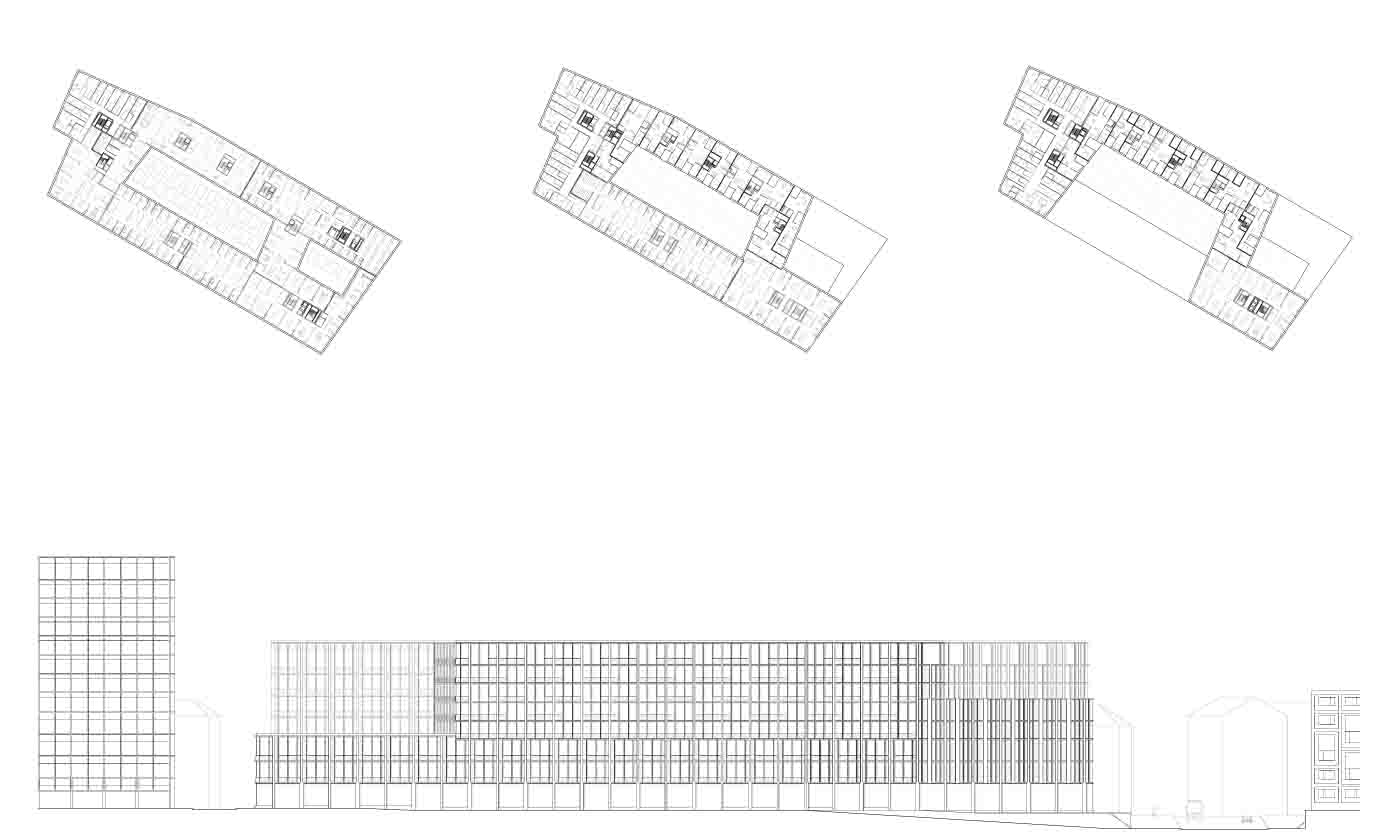
- bei Meier Hug Architekten
- Zürich | Schweiz
- November 2009
Mit der Europaallee erhält die Zürcher Innenstadt einen neuen Stadtteil, in direkter Nähe zum Hauptbahnhof. Auf dem "Baufeld H" soll ein Bürogebäude entstehen. Ein Hotel, sowie Wohnungen und Geschäfte sind im Raumprogramm inbegriffen.