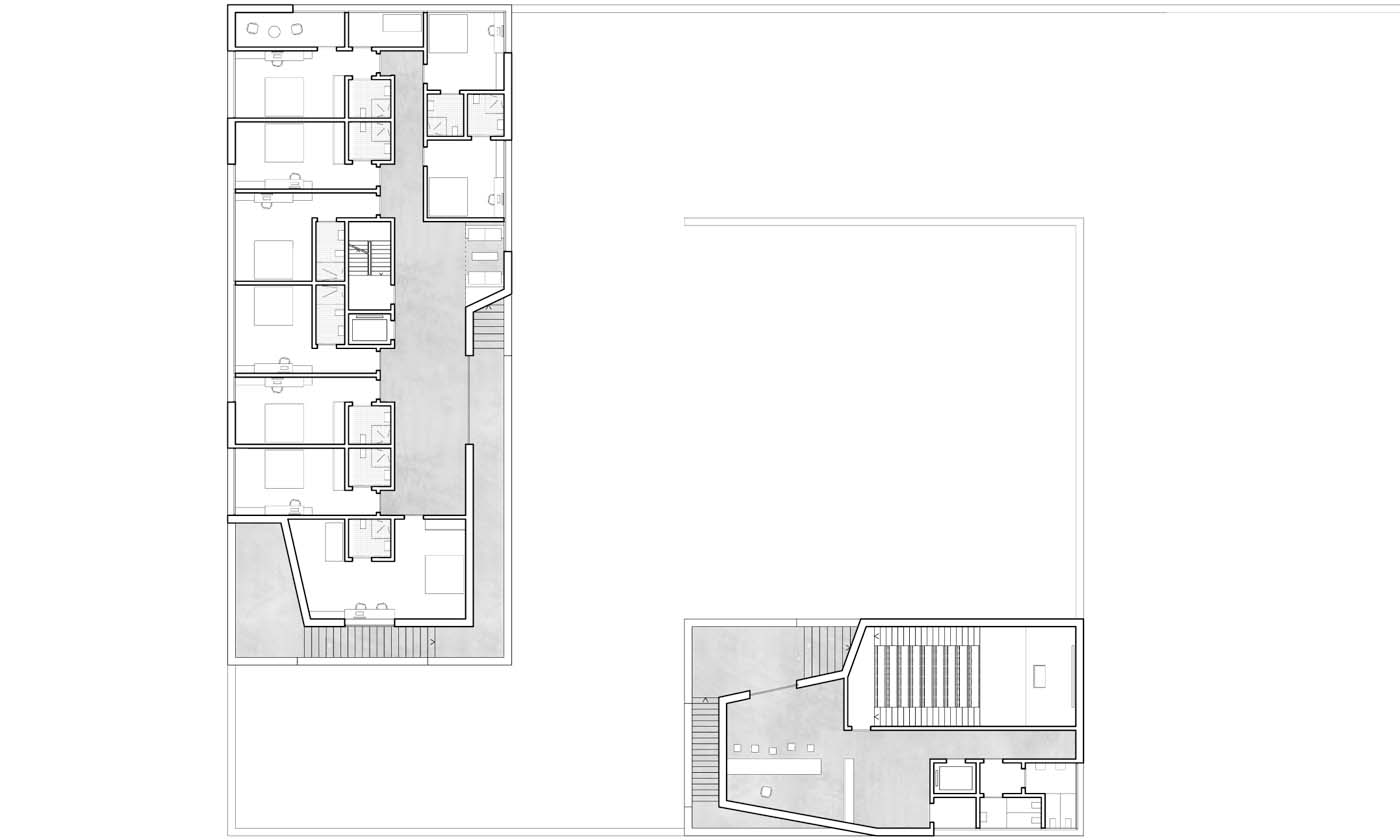
Ein kleiner Weiler nahe Niederkappel ist der Ausgangsort für Tagesausflüge.
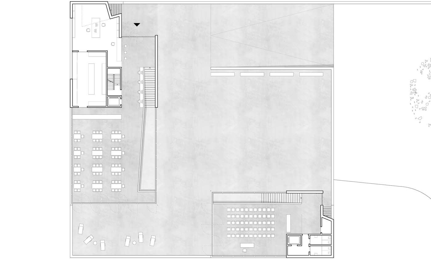
An dieser Stelle wird ein Gästehaus geplant, das wie eine Skulptur an der Hangkante zum Donautal liegt.
Die aussenliegende vertikale Erschließung der Gebäude unterstreicht den naturnahen Charakter der Anlage.