en | de
Vita | Projekte | Wettbewerbe | Kontakt
- bei Meier Hug Architekten
- Baden | Schweiz
- April 2010
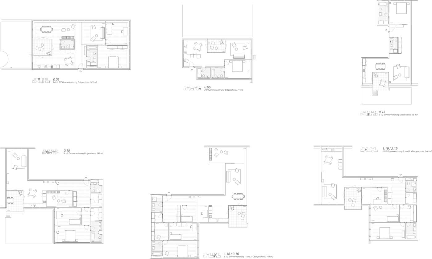
Ein alter Bürokomplex in Baden, bestehend aus 4 Einzelgebäuden soll in ein Wohnquartier umgewandelt werden. Meier Hug Architekten haben ein zusammen- hängendes Wohngebäude mit modernen Grundrissen und anspruchsvollen Wohnungen entwickelt.