en | de
Vita | Projekte | Wettbewerbe | Kontakt
- Semester Projekt
- Berlin | Deutschland
- Februar 2012
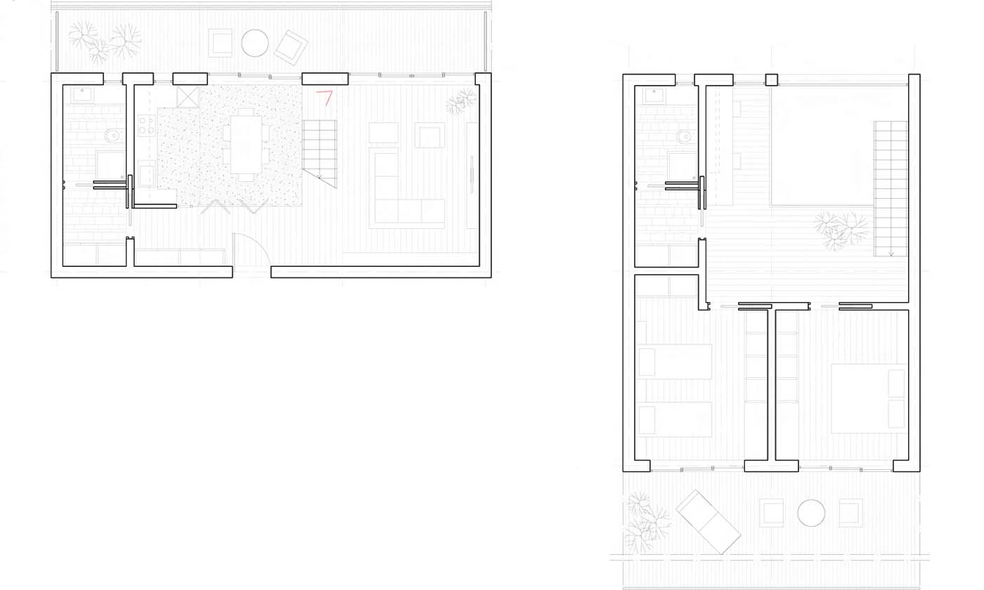
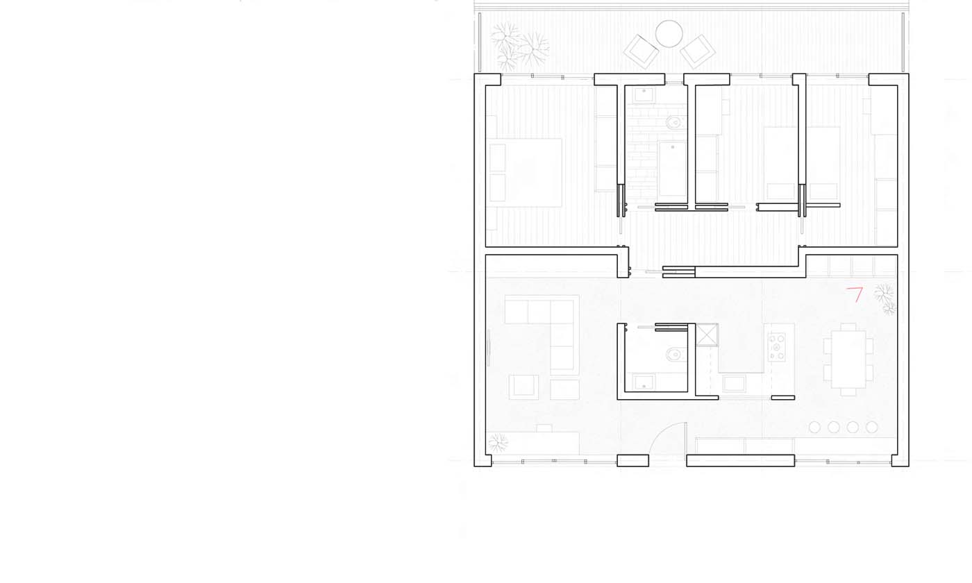
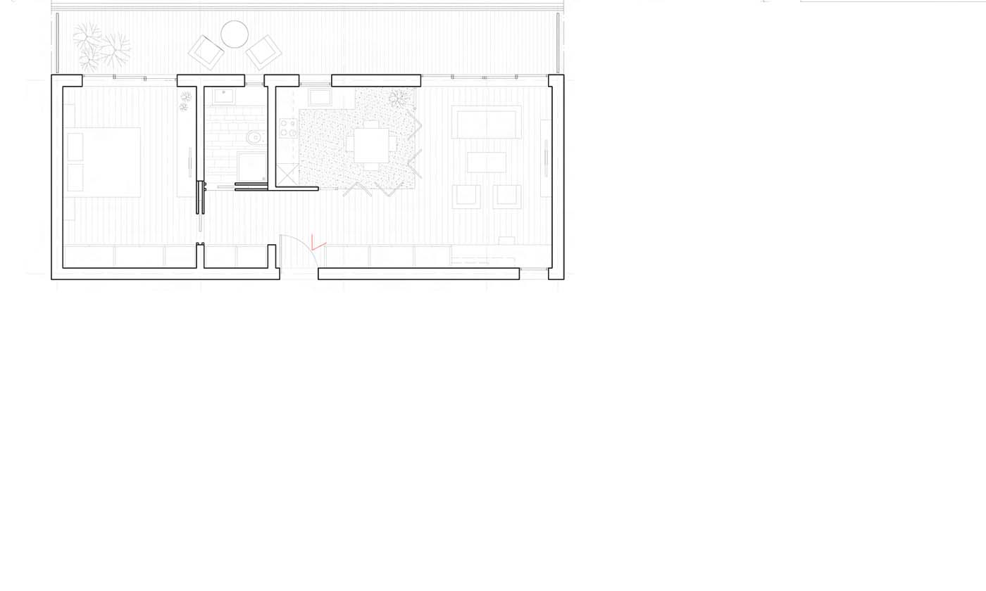
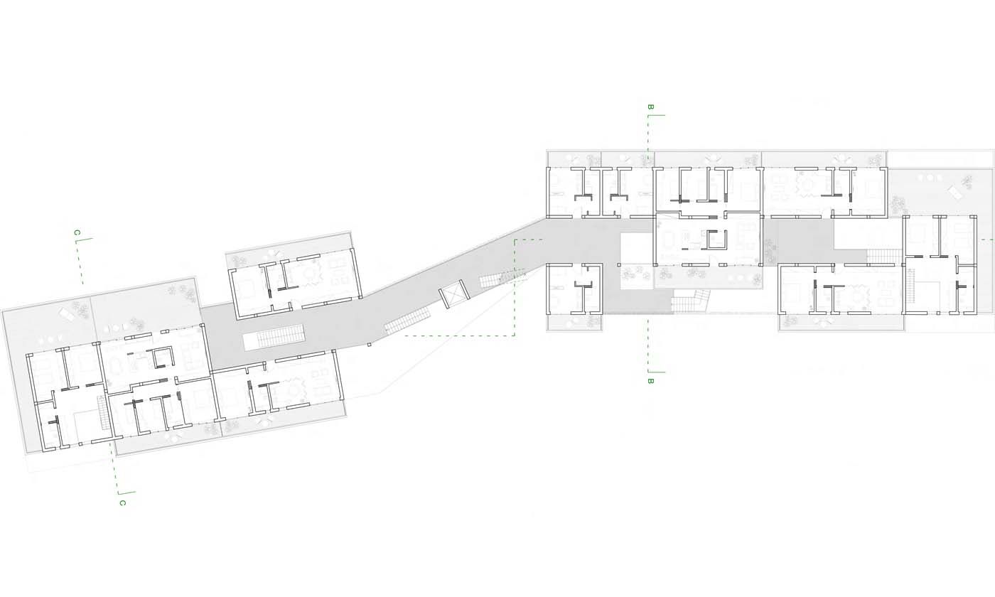
Der Entwurf wurde inhaltlich von einem Seminar zum Thema "Wohnkomfort" begleitet. Der Schwerpunkt liegt auf der Ausarbeitung individueller Wohnungen für die Zukunft. Die Bedürfnisse der Bewohner stehen an erster Stelle.