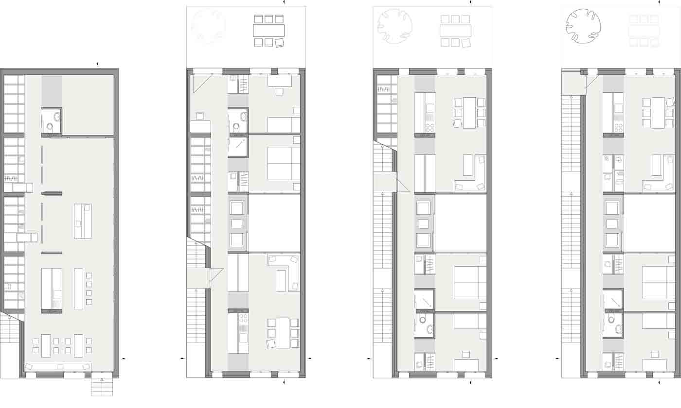
Im Amsterdamer Stadtquartier Joordan wird eine sehr schmale Parzelle an einer Gracht bebaut.
Durch die funktionale Auslagerung der vertikalen Erschliessung entstehen vergleichbare
Wohnungen von höchster Funktionalität und präzise geplanten Raumdimensionen.